西恋ヶ窪緑地(エックス山)における樹木更新について
第5期樹木更新を実施します
林を良い状態で将来に引き継ぐために、林の樹木更新をエックス山等市民協議会と協働で、実施します。

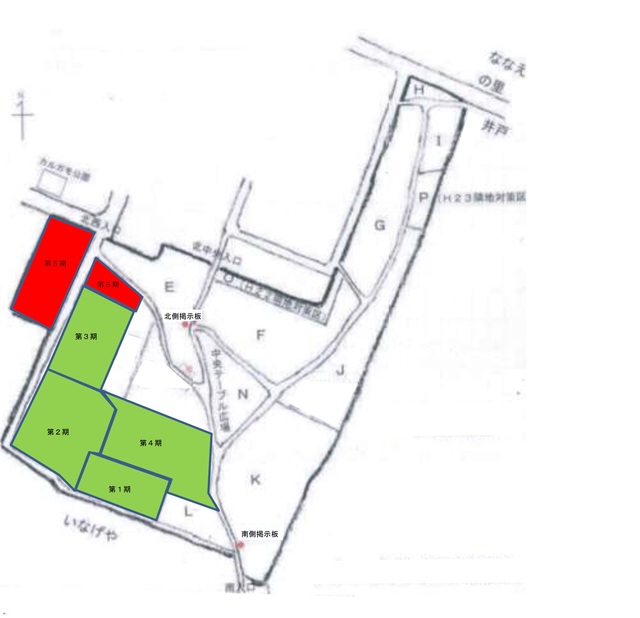
| 年度 | 面積 | |
|
第1期 |
平成20年度 | 450平方メートル |
| 第2期 | 平成21年度 | 1,000平方メートル |
| 第3期 | 平成30年度 | 600平方メートル |
| 第4期 | 令和元年度 | 1,200平方メートル |
一緒に作業をしませんか
エックス山等市民協議会では参加者を募集しています。
- 活動日時
-
令和2年12月1日から2月下旬までの月曜日・水曜日・金曜日(祝日・振替休日を除く)を予定。
詳しくは下記お問い合わせ先にお尋ねください。
午前9時30分から11時30分
(注釈)都合のつく日・時間帯のみの参加可
- 集合場所
- 市民室内プール西側「むかしの井戸」
- 活動内容
- 伐採した枝をのこぎりで切り、まとめるなどの作業を行います。
- 参加方法
- 当日、下記集合場所へいらしてください。

樹木更新とは
生物多様性、伐採後の幼樹への日照確保などを考慮して対象区域を選定し、その区域の樹木を一旦伐採し、伐採後に芽を出すヒコバエと実生を育てて林を若返らせることです。
冬場に伐採すると春には新しい芽がでますが、草・ササも猛烈に繁茂し、これを放置すると育成対象のコナラやクヌギが枯れてしまいます。林を育てるためには初夏から盛夏にかけて何度も下草刈りを行います。
伐採をして林を若返らせる方法は、一般的に「萌芽更新」という言葉が使われますが、西恋ヶ窪緑地(エックス山)に生えているような高齢樹を伐採してもヒコバエはめったに芽を出さないため、ドングリから芽生えた幼樹を大切に育てながら林の更新をしていることから、国分寺市では「樹木更新」という言葉を使用しています。切り株から芽を出すヒコバエは自力で育つので「生育」ですが、種子(ドングリ)から芽が出て育てる実生は人が手を入れる「育成」です。伐採後数年経過し、コナラ等が下草に負けないくらいまで成長したときにようやく「樹木更新」が行われたと言うことができます。
なお、伐採した木は、市内小学校の夏のキャンプファイヤーや飯ごう炊さんで利用してもらい、また、薪ストーブ用の薪材としての提供、枝先のチップ化などでゴミとして処理するものはありません。


第3期樹木更新の作業後の写真です。
写真手前が平成30年度の樹木更新をした区域で、左奥が巨木化したままの林です。右奥が平成21年度に樹木更新をし、林がよみがえった姿です。
このページに関するお問い合わせ
建設環境部 緑と公園課 公園緑地担当
電話番号:042-325-0129 ファクス番号:042-325-1380
お問い合わせは専用フォームをご利用ください。
